最近は住宅会社様や工務店様からのプラン作成の依頼が増えてきました。
各会社様によってルールや方針などが違いますが、その中でも自分の理念を反映しつつご提案させて頂いています。
設計士(建築士免許を持っていない方がプランを描くこともあるためこう呼びます)がプランを描く際、特に戸建て住宅規模ではありがちなのですが、
間取り→外観→構造→断熱などの省エネ→設備・・・という流れを、「順番」に考えていく設計士がまだまだ多いように見受けられます。
順番に考えていくと、どこかにしわ寄せが発生しがちです。
やはり間取りを描きながら外観も考える、構造も確認する、断熱にも配慮する、という「並行」した計画がかなり重要になってきます。
出来上がったプランが行き当たりばったりの計画で作られたものなのか、きちんと並行させて練られたものなのか、一般のお施主様が判別するのは難しいです。
住宅会社にプラン作成を依頼する際、「要望アンケート」を書くことが多いですよね。
LDK〇〇帖、和室は〇〇帖、大きいWIC・・・など。「この要望をすべてをプランに反映してくれているのが良い設計士」と判断してしまうのは大きな間違いです。
要望をすべて反映させるために、例えば外観・構造・断熱などが疎かになっている可能性もあります。
「なぜ要望すべてを反映することができなかったのか。なぜ反映しないほうがよかったのか。」という理由を是非聞いてみてください。
その理由を聞いた上で良いプランかどうか、良い設計士かどうかを是非判断すべきです。
決して図面の出来栄えだけで判断してはいけません。
構造や断熱など、住宅の性能部分は非常に地味で図面には表れにくい要素です。
逆に、部屋の広さや部屋数の多さなどは図面として目を引きますよね。
広さなどももちろん重要な要素ですが、性能面を疎かにして建築をすると後悔する可能性が高いはずです。
建築計画時に性能への関心がそうでなくても、住みながらにしてボディーブローのようにじわじわを効いてきます。
住まい心地やメンテナンス費用などですね。
計画時は、広い部屋やキラキラとした設備に夢が膨らみやすいとは思います。
これらが重要ではないと言ってるわけではないですが、是非トータルバランスを大切にして、
そこに付き合ってくださる設計士・住宅会社と家づくりをして頂ければ良いのではないかと思います。

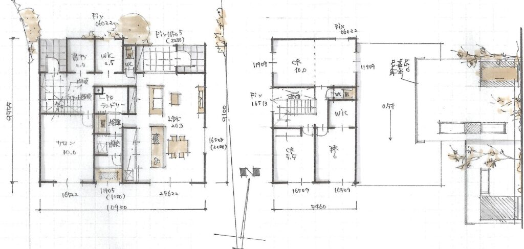
例えば僕が計画するときは、
間取りを書きながら、上下階の柱位置、耐力壁の位置の目処を立てつつ・・・
大きい空間上部は下屋根にしてしまって荷重を小さく、外観もスッキリさせて・・・

今回のプランは軒を出さないという方針の住宅会社様からのご依頼なので、
南面窓の日射遮蔽のために付庇やアウターシェードが必要だな・・・・
なんてことを考えながらプランを描いています。